Pěkný stavební pozemek, určený k bydlení v rodinných domech venkovského charakteru.
Pozemek je situovaný v okrajové části obce Jindřichovice u Blatné (cca 4 km od Blatné, 16 km od Strakonic, 14 km od Horažďovic, 25 km od Písku, 95 km od Prahy).
V nedaleké Blatné je kompletní občanská vybavenost.
Popis:
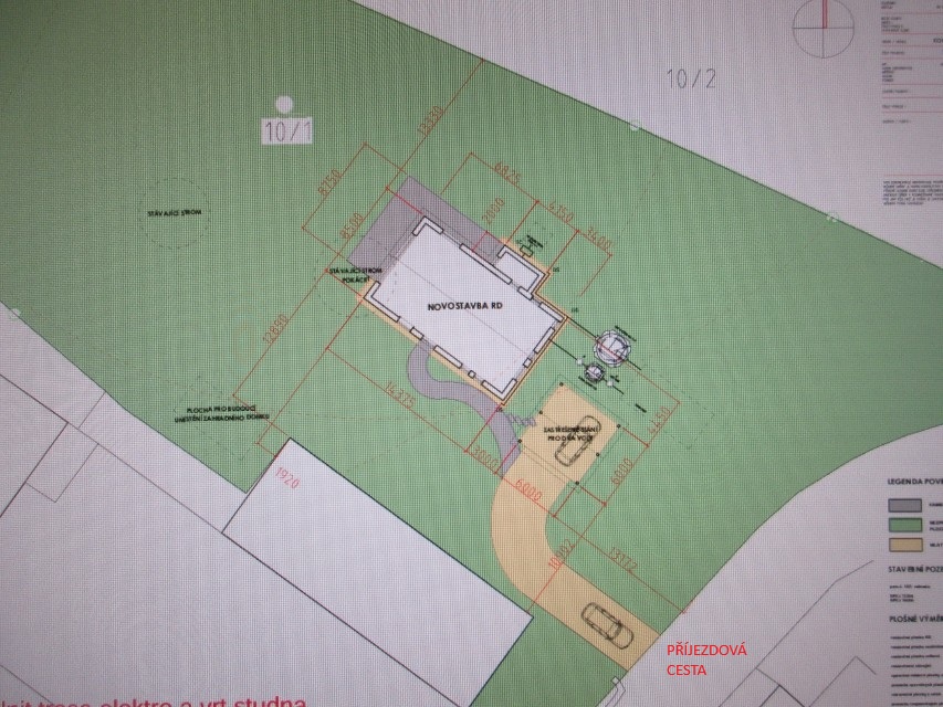
Pozemek – p.č.10/1 – zahrada o výměře 3.772 m2, katastrální území Jindřichovice u Blatenky (STRAKONICKO). Na pozemku se nachází pilíře, na kterých byl mobilheim.
Hlavní využití: Stavby pro bydlení v rodinných domech venkovského charakteru.
Podrobnosti v ÚZEMNÍM PLÁNU OBCE BLATNÁ.
Přístup k pozemkům je zajištěn z asfaltové obecní komunikace.
Na hranici pozemku se nachází elektroměrový pilíř a vrt (h 44) na pozemku.
Přípustné využití: Drobné zemědělské hospodaření,
Veřejná správa, školství, kulturní zařízení, církevní stavby, stavby integrovaného záchranného systému do velikosti 300 m2 zastavěné plochy.
Cena 1.060,- Kč/m2 = 3.998.320,-Kč, SLEVA NA 990,-Kč/m2 = 3.734.280,-Kč















